Aller au contenu principal
Réf. : 028/1603
Dernière mise à jour de l’annonce : 04/12/2025

Vente

264 656 € (Honoraires de négociation inclus)
251 415 € (Prix net vendeur)
Montant des honoraires : 13 241 €
Pourcentage des honoraires : 5 %
Honoraires à la charge de l'acquéreur
50380 SAINT PAIR SUR MER
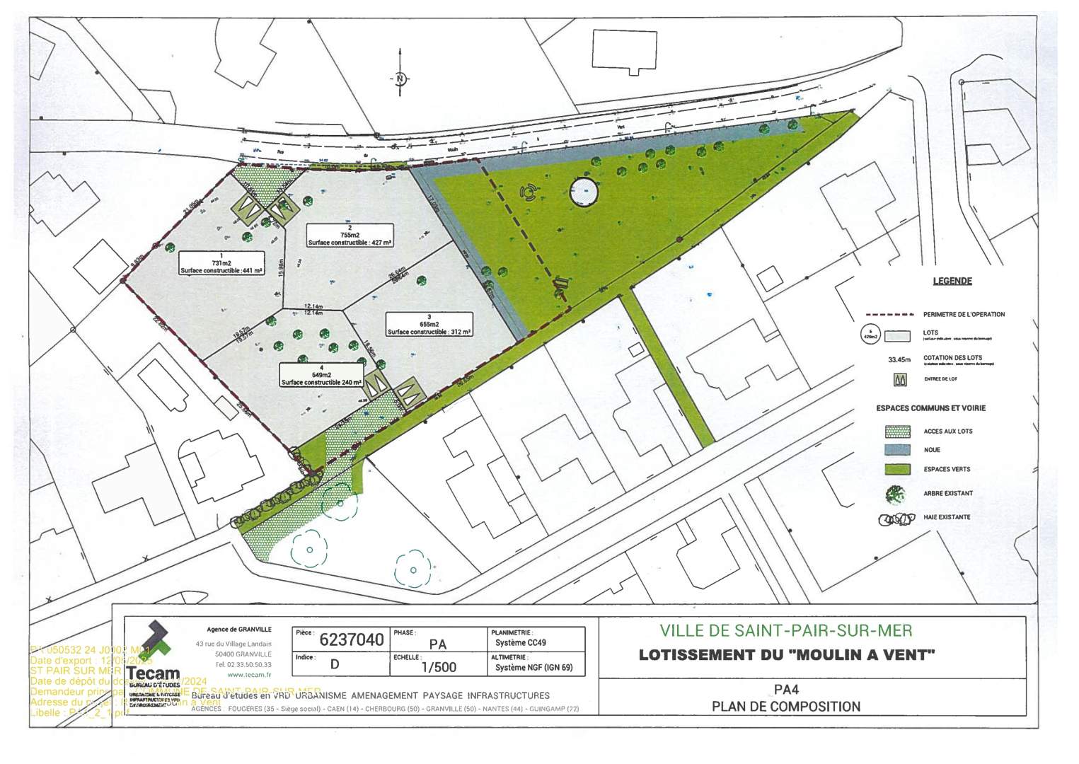
En vente immo-interactif, A 500m du coeur de ville, dans un bel environnement, terrain â bâtir (lot n°2) avec vue mer de 755m² dont 427m² de constructible viabilisé (eau, électricité, tout à l'égout, fibre). Diverses contraintes architecturales dans le réglement notamment: Surface plancher possible : 200m² Construction dans la zone d'implantation obligatoire. Hauteur : 6.5m au faitage et 3 m à l'égout. Toiture 2 versants symétriques. Couverture en zinc, ardoises ou bois. Cuve d'eau enterrée pour eaux pluviales Certificat d'urbanisme du 6 novembre 2025. Conditions de la vente : le bien est présenté en IMMO interactif à la hausse 1ère offre possible: 264.656€ honoraires de négociation et frais publicité inclus. Minimum du pas des offres : 5.000€ Début des offres : Mardi 13 janvier 2026 à 14H00 Fin des offres : Mercredi 14 janvier 2026 à 14H00 sur le site immobilier.notaires.fr Frais d'actes en sus Les informations sur les risques auxquels ce bien est exposé sont disponibles sur le site Géorisques: www.georisques.gouv.fr

Conditions de vente

Prix HNI :  264 656 €
(honoraires de négociation inclus)
Prix net vendeur :  251 415 €
Honoraires :  13 241 € (Montant des honoraires de négociation)
Pourcentage d'honoraires :  5 %
Type d'honoraires :  À la charge de l'acquéreur

Contact

Négociateur : Nadège DESMEULES
Téléphone : 02 33 50 00 34
Adresse : 6 Avenue du Maréchal Leclerc
Code postal :  50400
Ville :  GRANVILLE